"The Grand Residence!"
Die Higlights sind:
- Exklusive Residenz im begehrten Frankfurter Stadtteil Lerchesberg – stilvolle Eleganz trifft luxuriösen Wohnkomfort
- Freistehendes Villenanwesen mit zeitloser Architektur und repräsentativem Charakter
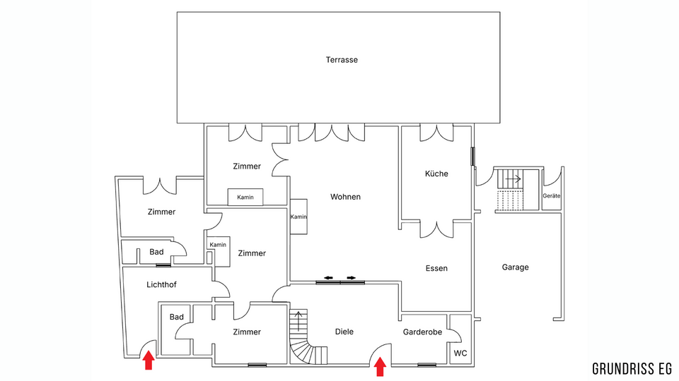
- Großzügiger Eingangs-, Wohn- und Essbereich mit imposanter Galerie und elegantem Ambiente
- Drei französische Kamine aus dem 18. Jahrhundert als stilvolle Highlights
- Edles Fischgrätparkett, Stuckverzierungen und Holzvertäfelungen verleihen klassisches Flair
- Bodentiefe Holzsprossenfenster schaffen lichtdurchflutete Räume und ein harmonisches Wohngefühl
- Fußbodenheizung, elektrische Rollläden und modernes Sicherheitssystem für höchsten Komfort
- Maßgefertigte Einbauküche mit erstklassigen Geräten – perfekt für anspruchsvolle Genießer
- Sieben Schlafzimmer, jeweils mit stilvollem Ensuite-Bad und hochwertigen Einbauten
- Drei separate Gäste-WCs für zusätzlichen Komfort
- Exklusiver Spa- und Fitnessbereich mit Sauna für entspannte Stunden
- Separater Gästetrakt mit eigenem Eingang und Outdoor-Bereich für maximale Privatsphäre
- Eigenständige Einliegerwohnung – ideal für Nanny, Au-pair oder Personal
- Wunderschön angelegter Garten mit großzügigen Terrassenflächen und Süd-/West-Ausrichtung
- Große Doppelgarage mit direktem Zugang zur Küche sowie zwei weitere Stellplätze in der Einfahrt
- Ein einzigartiges Anwesen, das Stil, Komfort und höchste Lebensqualität in einer der besten Lagen Frankfurts vereint
Fakten:
| Referenz-Nr. | A1668 | |
|---|---|---|
| Stadtteil | Frankfurt Sachsenhausen | |
| Baujahr | 1992 | |
| Wohnfläche | 485 m² | |
| Grundstück | 1.167 m² | |
| Zimmer | 13 Zimmer | |
| Badezimmer | 10 Badezimmer | |
| Energieausweis | liegt vor | |
| Kaufpreis | € 4.175.000,– zzgl. Courtage |